U gebruikt een verouderde internetbrowser.
We raden u aan om de meest recente internetbrowser te installeren voor de beste weergave van deze website.
Een internetbrowser die up to date is, staat ook garant voor veilig surfen.

Herdersstraat 10 / LOT A, 3700 Tongeren
Vraagprijs: € 75.000

Omschrijving

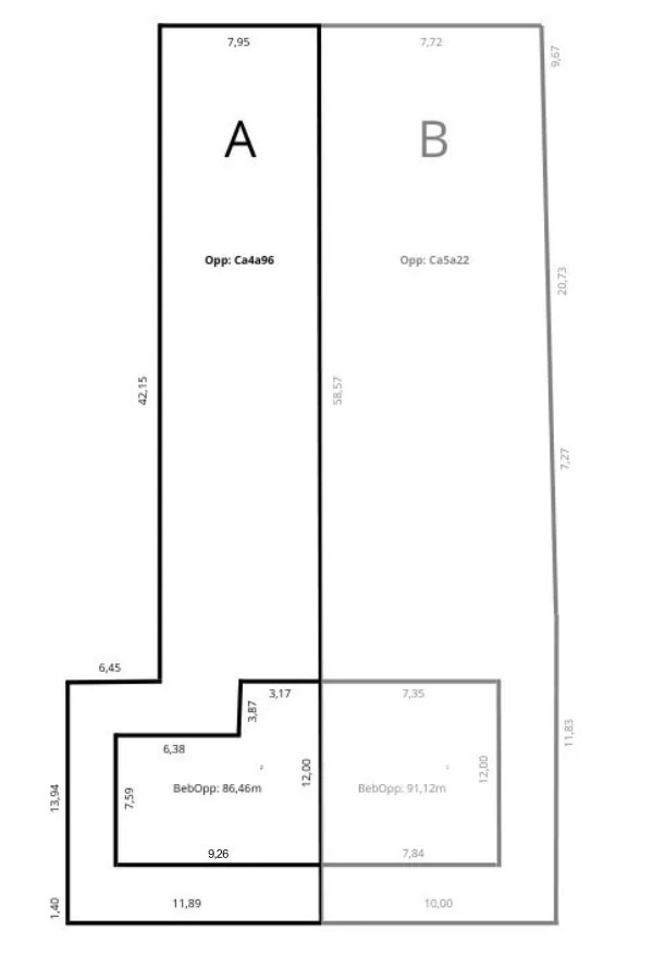
Ruime half open bebouwing op perceel in Tongeren met 496m² grondoppervlakte

In Tongeren staat deze half open bebouwing te koop op een perceeloppervlakte van 496.00 vierkante meter. De grond waarop het huis staat, is ideaal gelegen in een rustige en groene omgeving. Met een perceeloppervlakte van bijna 500 vierkante meter, is er voldoende ruimte voor een tuin en terras.

De ligging van de grond is perfect voor wie houdt van rust en natuur, maar toch ook graag dicht bij alle voorzieningen wil wonen.

Kortom, deze grond met half open bebouwing in Tongeren is een ideale plek voor wie op zoek is naar een rustige en groene omgeving, maar toch ook dicht bij alle voorzieningen wil wonen. Met een perceeloppervlakte van 496.00 vierkante meter en een ruime woning, is er veel potentieel om hier een droomhuis van te maken.

Vrijblijvende bezichtiging mogelijk via 012/230.320 of via info@vastgoedcentrale.be


Kenmerken

Algemeen

Adres:Herdersstraat 10/LOT A
Tongeren
Vraagprijs:€ 75.000
Type:Grond
Beschikbaar vanaf:Bij akte
Perceeloppervlakte:496 m²
Bebouwde opp.:88 m²
Type constructie:Traditioneel

Informatieplicht

Stedenbouwkundige bestemming:Woongebied
Overstromingsgevoelig:Geen overstromingsgevoelig gebied
Overstromingsgebied:Geen afgebakende zones
Overstromingskans perceel (P-score):C
Erfgoed:Geen beschermd erfgoed

Ligging

Streetview

Neem vrijblijvend contact op

Bel 012 230 320 of vul onderstaand formulier in.

 


U moet akkoord gaan met het privacybeleid van deze website
* Verplicht in te vullen
Niet gevonden wat u zocht?
Schrijf u dan vrijblijvend in en blijf op de hoogte van ons meest recente aanbod. 
Schrijf u in
Sluit menu Vastgoed Centrale